Limpieza de Chimeneas y Ductos
Limpieza de Chimeneas y Ductos

Limpieza de ductos y chimeneas, enfocado específicamente a la remoción de hollín , el cual se adhiere a las paredes de las chimeneas y ductos.
El hollín son partículas sólidas de tamaño muy pequeño, desde unos 100 nanómetros (100 nm) hasta 5 micrass (5 μm) como máximo. En su mayoría compuestas de carbonoo impuro, pulverizado, y generalmente de colores oscuros más bien negruzcos resultantes de humo y vapores de la combustiónn incompleta de gases combustibles.
Es común, encontrar grandes cantidades de hollín en las salidas de combustión de las calderas, y hornos de tratamiento térmico.

La existencia en exceso de hollín en chimeneas y ductos puede encenderse fácilmente al contacto con flama, ocasionando incendios o conatos de incendio deteniendo operaciones por al menos unas horas.
Siendo esta limpieza de ductos y chimeneas un requisito del la norma CQI-9 (norma que rige el proceso de tratamientos térmicos en la industria) SURISA INDUSTRIAL GROUP S.DE R.L. DE C.V. provee este servicio con la generación de reporte valido para soportar este punto en una auditoria CQI-9.
Reparación de Recuperadores de Calor
Reparación de Recuperadores de Calor

La reparación de recuperadores de calor, comprende la reparación del aislante térmico que llevan los recuperadores de calor a la salida de los tubos radiantes de un horno de tratamiento térmico ya sea batch o continuo, esta reparación se realiza a base de cementos refractarios.
Cambio de Refractario
Cambio de Refractario

El cambio de refractario total, comprende un mantenimiento mayor, en el que se realiza con horno apagado.
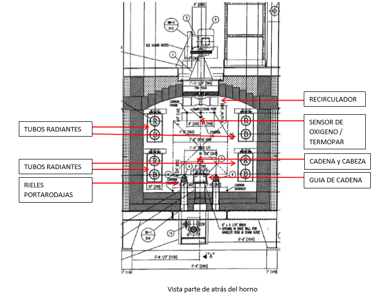
Comprende la remoción de las partes del horno, como tubos radiantes sensores termopares, rieles, recirculador de atmosfera, la demolición de ladrillo actual en paredes piso y bóveda de horno, la colocación del nuevo refractario, colocación de las partes removidas así como puesta en marcha del horno.
Reparación de Refractario
Reparación de Refractario

La reparación de ladrillo refractario, comprende un mantenimiento mayor, en el que se realiza con horno apagado. Comprende sólo las partes indicadas por el usuario
como mochetas, marcos, soporte de rieles, bóveda, etc.
Filtración de Aceite de Temple
Filtración de Aceite de Temple
La filtración de aceite se realiza a base de prensado con filtros que van desde 15 micrones hasta 1 micrón con el fin de eliminar partículas solidas generalmente de hollín y otras sustancias.
El grado de contaminación se determina bajo la escala ISO para limpieza de aceites.

Es critico para el proceso de tratamiento térmico contar con un aceite de temple limpio, ya que un aceite sucio causa en los productos templados problemas de calidad como superficies con baja dureza, mala apariencia (manchas), así como contaminación en los refrigerantes de las maquinas de los siguientes procesos si los hay.
Asesoría en Procesos de Tratamientos Térmicos
Asesoría en Procesos de Tratamientos Térmicos

- Asesoría en Ingeniería de Procesos de Tratamientos Térmicos
- Capacitaciones
- Soporte técnico al proceso